
Viertokatu 76, Purola, Kajaani Hinta: 99 000 €
Nyt vapautumassa omakotitalo Purolasta Kajaanista.
Talo sijaitsee rauhallisella alueella ja palvelutkin ovat lähellä.
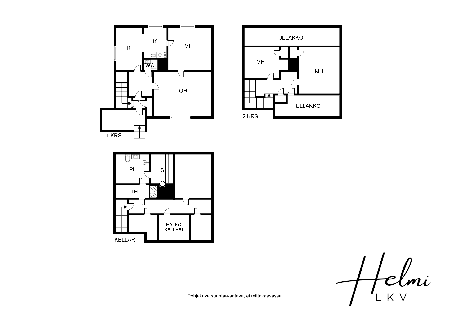
Tässä kodissa on 3 makuuhuonetta, joista yksi on alakerrassa ja kaksi yläkerrassa. Alakerrasta löytyy myös tilava olohuone, keittiö sekä erillinen wc. Yläkerrassa on makuuhuoneiden lisäksi ullakkotilaa. Talon kellarikerroksessa on kylpyhuone ja sauna, takkahuone, sekä varastotilaa.
Taloon tehty kuntotarkastus 10.09.2025, mitään välitöntä, normaalista poikkeavaa huollon tarvetta ei havaittu. kysy tästä lisää välittäjältä.
Olkaa yhteydessä, niin lähdetään yhdessä tutustumaan!
Asunnon perustiedot
Kajaani Purola, Viertokatu 76, 87150
Tyyppi: Omakotitalo (kiinteistö)
Omistusmuoto: Omistusasunto
Huoneistoselitelmä: 4h, k, kph, s, wc, var
Huoneita: 4 huonetta
Asuintilojen pinta-ala: 134 m²
Muiden tilojen pinta-ala: 63 m²
Kokonaispinta-ala: 197 m²
Lisätietoja pinta-alasta: Pinta-alaa ei ole tarkistusmitattu
Rakennusvuosi: 1959
Käyttöönottovuosi: 1959
Vapautuminen: Sopimuksen mukaan.
Hinta ja kustannukset
Myyntihinta: 99 000 €
Muut maksut: Sähkönkulutusarvio 10 736 kwh / vuosi.
Kiinteistövero 316 € / 2025.
Tontin vuokra 630,34 € / vuosi. .
Asunnon lisätiedot
Sauna: Asunnossa on sauna
Tehdyt remontit:
2011 Maalämpö
2016 Ikkunat
2019 terassilasit
2019 Käyttövesiputket
Asunnon kunto: Tyydyttävä
Kuntotarkastus: Tehty 10.09.2025
Energialuokka: Ei lain edellyttämää energiatodistusta
Asbestikartoitus: Ei, Rakennusmateriaalit saattaa sisältää asbestia.
Lämmitystapa: Maalämpö
Lämmönjakotapa: Vesikiertoinen patterilämmitys
Vesijohto: Kunnan vesijohto
Viemäri: Kunnan
Sähköliittymä siirtyy: Kyllä
Siirtyvät liittymät: Sähköliittymä, Vesiliittymä, Viemäriliittymä
Ilmanvaihto: Painovoimainen, Koneellinen poisto, Koneellinen tulo
Asunnon tilat ja materiaalit
Pääasiallinen rakennusmateriaali: Puu
Keittiön kuvaus:
Seinämateriaali: Maalattu seinä, Osalaatoitusseinä
Lattiamateriaali: Lautalattia
Varusteet: Jääkaappi, Pakastin, Astianpesukone
Työtaso: Laminaattitaso
Liesi: Keraaminen liesi, Liesituuletin, Puuhella
Kylpyhuoneen kuvaus:
Seinämateriaali: Kaakeliseinä
Lattiamateriaali: Laattalattia
Varusteet: Suihku, WC, Suihkuseinä, Pesukoneliitäntä, Peili
WC-tilojen kuvaus:
Seinämateriaali: Maalattu seinä, Osalaatoitusseinä
Lattiamateriaali: Laattalattia
Varusteet: Lattiaan asennettu WC, Peilikaappi, Allaskaappi
Saunan kuvaus:
Seinämateriaali: Paneeliseinä
Lattiamateriaali: Laattalattia
Varusteet: Puukiuas
Olohuoneen kuvaus:
Seinämateriaali: Tapettiseinä
Lattiamateriaali: Lautalattia
Makuuhuoneiden kuvaus:
Seinämateriaali: Maalattu seinä
Lattiamateriaali: Lautalattia
Kattotyyppi: Harjakatto
Kattomateriaali: Pelti
Asunnon tontti
Tontin omistus: Vuokra
Tontin tyyppi: Tasamaatontti
Tontin pinta-ala: 868 m²
Tie perille: Kyllä
Kaavoitustilanne: Asemakaava
Rakennukset: Varasto
Tontin vuokraaja: Kajaanin Kaupunki
Tontin vuokra: 630,34 € / vuosi
Lisää kuvia voit katsoa etuovesta

